top of page
Progetto uffici aziendali
Una vetrata verso la produzione
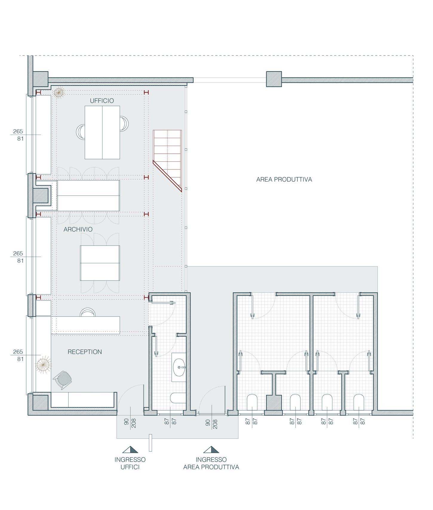
Il progetto si sviluppa all’interno di un capannone industriale, sfruttando al massimo l’altezza generosa dello spazio esistente. L’intervento si articola su due livelli: al piano terra si trovano gli uffici operativi, mentre il piano superiore ospita una sala riunioni.
Elemento centrale del progetto è la scala vetrata, che collega i due piani e crea un dialogo diretto con la zona produttiva. La doppia altezza valorizza la percezione spaziale, favorendo il passaggio della luce tra i piani.
Il progetto lavorando in sezione, definisce volumi e rapporti visivi che trasformano il capannone da contenitore industriale a luogo dinamico per il lavoro e la collaborazione.

bottom of page

